Modern Header
Compare Properties
ESC to close

Start typing to search properties...

Email
Call
WhatsApp
Apartment

Embassy Greenshore, Inside Embassy Springs Township, Devanahalli, North Bangalore.

Embassy Greenshore Embassy Springs Township, MSEC Road, Devanahalli, Near Kempegowda International Airport, Bengaluru, Karnataka – 562110, India
Under construction
December 2031 onwards
RERA Approved
18 Floors
₹ 56.2 Lakh Onwards
Apartment
Project Overview

Embassy Greenshore Thoughtfully designed spacious homes allow you to live expansively, with large windows, open layouts, and views that bring the outdoors in. More than just a place to live, it’s a vibrant community where neighbours become friends, and life is enriched by meaningful connections. Set within an integrated, sustainable township, Embassy Greenshore gives residents access to the finest social infrastructure- from international schools and healthcare to retail, recreational spaces, and seamless mobility. Every detail, from tree-lined boulevards to water-sensitive landscaping, reflects a commitment to environmental responsibility and long-term well-being. Here, you’re not just buying a home – you’re becoming part of a lifestyle that is elevated, and effortlessly peaceful.

Location
Embassy Greenshore, Embassy Greenshore, Inside Embassy Springs Township, Devanahalli, North Bangalore.
Property Type
Apartment
Status
Under construction
Possession
December 2031 onwards
RERA Number
PRM/KA/RERA/1250/303/PR/201125/008265
Payment Plan
Construction Linked Payment (CLP)
Land Area
14 Acres
Open Space
75%
No. of Floors
18 Floors
Total Units
878
Units per Floor
6
RERA Status
Approved
Clubhouse
26,102 sq. ft.
Pricing
Starting Price
₹ 56.2 Lakh Onwards
Configuration Size (SqFt)
2 BHK 1200
3 BHK 1750
4 BHK 2200
Amenities
Adventure Park
Amphitheater
AV Room
Club House
cricket practice pitch
Garden
Grocery Store
gym
Half Basketball Court
Indoor Badminton Court
Indoor Games Room
Kids Play Area
Mini Theatre
multi sport court
Outdoor Gym
party hall
Pedestrian Walk
squash court
Swimming Pool
About the Project

🏢 Embassy Greenshore – Key Project Data

📍 Location
Inside Embassy Springs Township, Devanahalli, North Bangalore
Near Kempegowda International Airport (~15–20 mins)

📐 Land & Scale
Total Land Area: ~14 Acres
Total Saleable Area: ~1.55 million sq.ft.
Part of: 288-acre Embassy Springs township

🏗️ Towers & Structure
Total Towers: 8 Towers
Floors: B + G + 18 Floors
Units per Floor: ~6–7 units
Elevators: Typically 2 lifts per tower core (standard configuration)

🏠 Total Units
Total Units: ~800–878 apartments (varies by phase)
Phase 1 Units: ~700 units

🏡 Configurations & Sizes
2 BHK: ~1200 sq.ft.
3 BHK: ~1750 – 1850 sq.ft.
4 BHK: ~2200 – 2600 sq.ft.

💰 Pricing (Latest Range)
2 BHK: ₹1.27 Cr – ₹1.40 Cr
3 BHK: ₹1.83 Cr – ₹2.15 Cr
4 BHK: ₹2.30 Cr – ₹3.05 Cr
Avg Price: ~₹9,000 – ₹11,000/sq.ft. (market indication)

🏗️ Possession Timeline
Expected Possession: ~2030 (RERA timeline)

🌿 Amenities & Features
30+ lifestyle amenities including:
Clubhouse
Swimming pool
Gym & sports courts
Jogging tracks & landscaped gardens
Access to:
17-acre central lake
Schools, hospital, retail inside township

🌟 Key Highlights
Located in North Bangalore growth corridor (Devanahalli)
Part of largest township by Embassy
Larger-than-average apartment sizes (USP)
Strong launch: ₹860 Cr sales in 5 days

Specifications

Structure

  • RCC framed structure building.
  • Concrete solid block masonry.

Flooring & Finishes

  • Premium vitrified tile flooring in living, dining & bedrooms
  • Anti-skid tiles in bathrooms and balconies
  • High-quality wall finishes with emulsion paint internally
  • Weather-resistant exterior paint

Doors, Windows & Joinery

  • Main Door: Engineered wooden door with high-quality fittings
  • Internal Doors: Flush doors with laminate finish
  • Windows: Aluminium / UPVC framed windows for durability & insulation
  • Large window openings for better daylight and ventilation

Kitchen

  • Provision for modular kitchen setup
  • Granite countertop provision
  • Stainless steel sink with drainboard
  • Provision for:
  • Chimney
  • Water purifier
  • Utility area attached for washing machine / services

Electrical & Safety

  • Concealed copper wiring with modular switches
  • Adequate power outlets in all rooms
  • Provision for:
  • AC points in bedrooms & living
  • TV & internet points
  • 24/7 security system with CCTV in common areas
  • Fire safety systems as per norms

Balconies & External Features

  • Spacious balconies (many units with large decks)
  • Views of:
  • Landscaped gardens
  • Township greens / lakeside zones
  • Designed to bring outdoor living inside homes
Master Plan & Floor Plans

Master Plan

Master Plan
Tap to View

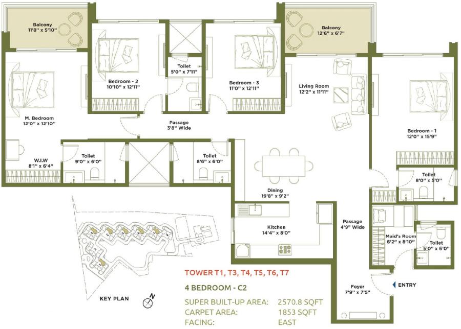
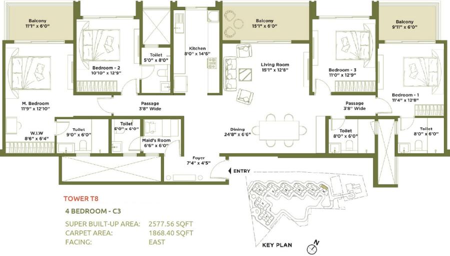
Floor Plans

Floor Plan
Floor Plan
Floor Plan
🔒 Floor Plan
Floor Plan
🔒 Floor Plan
Floor Plan
🔒 Floor Plan
Floor Plan
🔒 Floor Plan
Floor Plan
🔒 Floor Plan
Floor Plan
🔒 Floor Plan
Location
Hospital
Schools
Restaurant
Mall
Parks
Airport
Railway
Bus Stop
Pharmacy
Cafe
✕ Clear
Nearby Places 0
📍

Select a category

Tap on any chip to discover places within 100km

Download Brochure
Download Property Details
Expert Opinion
Expert opinion will be available soon.
About the Developer

Our story began in 1993 with a single vision: to redefine the Indian skyline. Over the past three decades, Embassy Group has grown from a bold idea into a global leader, crafting a legacy that spans over 100 million sq. ft. of world-class real estate. From vibrant commercial hubs and industrial parks to elegant hospitality venues and sustainable luxury homes, we create environments where people and businesses truly thrive.

But we believe that true leadership goes beyond bricks and mortar. We have successfully branched into renewable energy and comprehensive property management, ensuring a greener and more seamless future for everyone we serve. At the heart of our mission is a deep-rooted commitment to social impact. Through high-end education, equestrian sports, and extensive community outreach, we are proud to support and empower the dreams of over 42,000 students.

At Embassy, we don’t just build properties; we build communities, foster growth, and shape the future of modern living.

Frequently Asked Questions
  • Where is Embassy Greenshore located?
    Embassy Greenshore is located on MSEC Road, Devanahalli, North Bengaluru, within the large Embassy Springs township, close to Kempegowda International Airport.
  • What configurations are available?
    The project offers 2, 3, and 4 BHK apartments designed for mid-to-premium segment buyers.
  • What is the size range of apartments?
    2 BHK: ~1,200 sq.ft
    3 BHK: ~1,750–1,850 sq.ft
    4 BHK: ~2,200–2,600 sq.ft
  • What is the total project size?
    Land area: ~14 acres
    Total units: ~800–878 apartments
    Towers: 8 towers (G+18 floors)
  • Is Embassy Greenshore part of a township?
    Yes, it is part of the 288-acre Embassy Springs master-planned township, which includes schools, healthcare, retail, and infrastructure.
  • What amenities are provided?
    Key amenities include:

    Clubhouse
    Swimming pool
    Gymnasium
    Sports courts
    Jogging & cycling tracks
    Landscaped gardens
    Children’s play area
    Pet park and leisure zones
  • Is it a good investment?
    Located in a high-growth corridor (North Bengaluru)
    Close to airport and upcoming infrastructure
    Backed by Embassy Group’s strong brand reputation
    Suitable for long-term appreciation and end-use
  • What is the price of a unit in this project?
    Pricing starts from ₹ 56.2 Lakh Onwards. For detailed pricing, please request a callback.
  • Where is the project located?
    The project is located at Embassy Greenshore
    Embassy Springs Township, MSEC Road,
    Devanahalli, Near Kempegowda International Airport,
    Bengaluru, Karnataka – 562110, India.
  • When is the expected possession?
    The expected possession date is December 2031 onwards.

Floor Plan

Floor Plan

Get Property Details

Fill in your details and we'll get back to you